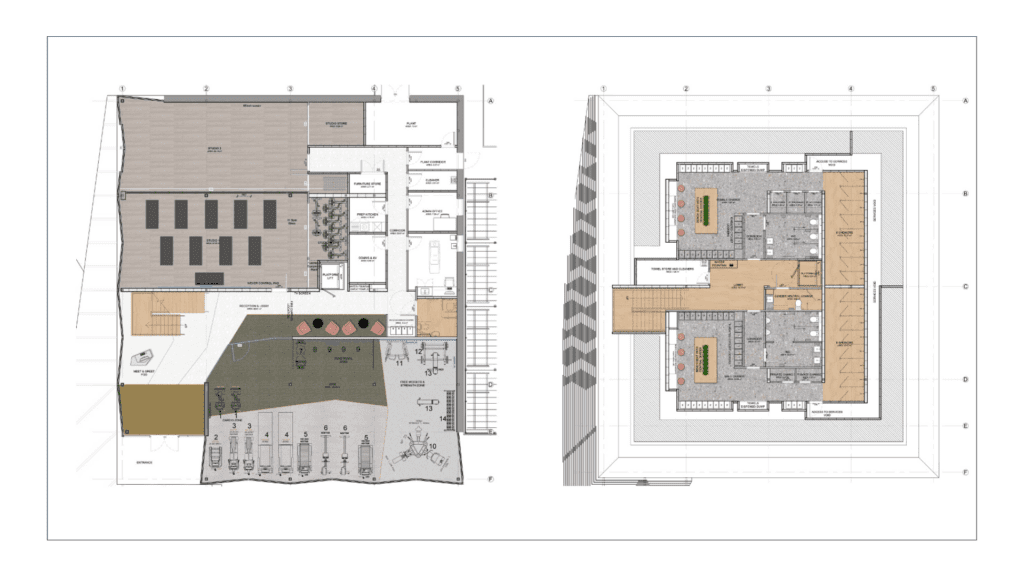
Gym layout design: Improving customer experience using layout techniques

Our latest blog explores the effect of gym layout on user experience and provides tips to consider when placing equipment in your gym.
Gym layout design: Improving customer experience using layout techniques

Our latest blog explores the effect of gym layout on user experience and provides tips to consider when placing equipment in your gym.
Gym designers vs. equipment suppliers – what’s the difference?

Google ‘gym design’ and you’ll find results for both gym architecture design experts and gym fitness equipment suppliers. Understanding the difference between the two is essential for choosing the right team to bring your vision to life.
How a corporate wellness centre can improve employee wellbeing

Corporate wellness centres have been a much talked about topic for some time, with many companies now stepping up their commitments to an employee wellness program as hybrid working has brought people back into offices.
Fitness & Wellness: It’s about building community

Wellness is taking over the industry. Gym-geors are now looking for communal wellness facilities, helping to build community and drive motivation.
Corporate Wellness Design: How and Why?

In today’s fast-paced and demanding corporate world, the need for employee wellbeing and better work-life balance has become increasingly recognised. After all, in a 2023 Deloitte study, 77% of respondents said they had experienced employee burnout at their current job, with more than half citing more than one occurrence. Companies are realising that a healthy […]
Gym and Wellness Design in the Age of Artificial Intelligence (AI)

The use of artificial intelligence in design is becoming increasingly important in the gym and wellness industry as technological advances mean we can now use AI for interior design concepts.
The benefits of biophilic design in health and fitness design

The use of biophilic design in gyms is not a new concept, but rather one that has increased in popularity since the pandemic when people were forced to stay indoors. As humans, we have an innate instinct to connect with nature (known as biophilia), so much so that spending time outdoors has been found to […]
The Top 5 Most Relaxing Colours for Your Spa Design

Much has been written about the psychology of colour and its use in our homes and commercial spaces. Although we may not realise it, the colour of our surroundings has a subtle but definite impact on our mood. And if you’re designing a well-being space, something such as spa colour needs to be very carefully […]
Here Are 5 Areas You Need in Your Gym Facility Design

When building a gym facility it’s essential for you to think about the different areas that you’re going to include in your design early on in the planning process. This will determine how much space is required and the type of gym layout design that will work best for you.